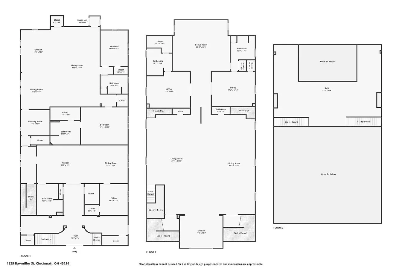
Mar 3 Mar 3 A Converted 1886 Gothic Revival Church - $1,400,000 Logan Banx Chapel Church 1835 Baymiller St, Cincinnati, OH 452145 bed/6 bath - 8,822 sqftZillow Link