Mixed Use in Pound Ridge, NY - $2,499,000
259 Westchester Avenue, Pound Ridge, NY 10576
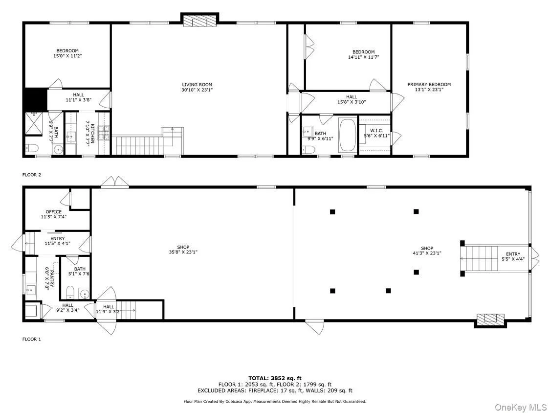
3 bed/2.5 bath - 2,500 sqft
PROPERTY OFFERING AT A GLANCE: (1) A fully renovated main building/showroom/retail with a 1.5M infusion in improvements. (2) Three-bedroom 2-bath exquisite residential rental and (3) Two-story renovated barn.
THE STORY: Located in the heart of the historic hamlet of Pound Ridge, this building was the former Samuel Parker house that was built in 1860. The mixed-use building was the old Schelling’s Market, and Samuel Parker Cafe.



